Buscador
Casa - Chalet en Venta U$S 340.000
ID 1040
Casa a estrenar Senderos III Costa Esmeralda
A Estrenar
Compartir
Street View

Descripción del Inmueble

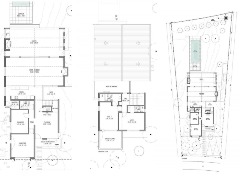
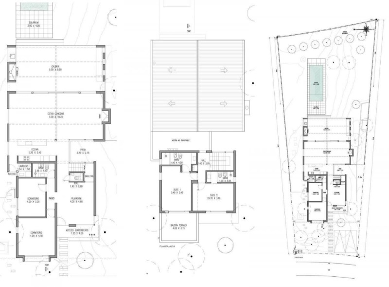
Casa en Senderos III Barrio Costa Esmeralda • 5 ambientes (4 dorm, 1 estar, 1 living comedor) Planta Baja Hall/Estar TV, Toilette de recepción , living Comedor con cocina integrada, amplia galería con parrilla, lavadero, piscina. Dos dormitorios, baño completo. Planta Alta 2 Suites, 1 con terraza balcón. SUPERFICIES Terreno 902.05 m2 Terreno libre 690.94 m2 Construido (100%) Superficie cubierta 213.77 m2 Superficie semicubierta 58.88 m2 Total 272.65 m2 Superficie espejo agua 24.00 m2 Características • Construcción tradicional. Estructura de muros portantes ladrillo portante 18 cms. Fundada sobre bases de hormigón armado. Losa sobre planta baja de Losetas tipo cerbelú. Cubiertas con pendiente: estructura de madera miltilaminada y paneles doble cara de chapa duopanel de Aerolatina con cuerpo de espuma poliuretánica. • Revestimiento exterior siding cementicio 8 mm vertical sobre bastidor pintado con Recuplast frentes. • Calefacción por piso radiante eléctrico marca Arienclima, con termostatos individuales en cada ambiente • Aires acondicionados splits instalados en dormitorios y estar comedor/cocina. Terraza de servicio para ubicación de unidades exteriores. • Cañería para datos en ambas plantas. • Alimentación de agua por tanque cisterna enterrado y bomba presurizadora, tanque de reserva elevado con bomba presurizadora de acuerdo a requerimientos CE. • 2 calefones para agua caliente de consumo en planta baja y planta alta. • Planta de tratamiento residuos cloacales de acuerdo a requerimientos de Costa Esmeralda. • Gas habilitado para alimentación de 2 calefones. • Cerramientos de aluminio Aluar A30 color negro con DVH (doble vidriado hermético), ventanas oscilobatientes y carpinterías corredizas. DVH con laminado en puertas ventana. • Pisos de porcerlanato simil madera en toda la casa, escalera terminada en microcemento • Puertas de madera foliada marca Gromanti. • Griferías FV Puelo monocomando, Espejos y accesorios en baños. • Artefactos sanitarios Piazza Amalfi. Inodoros doble descarga y asiento cierre suave. • Horno y anafe eléctrico marca Candy. Campana isla de acero inoxidable modelo TST Colhue • Mesadas de madera de Euca laqueada transparente en cocina y lavadero. Mesadas microcemento en baños, mesada y banco galería. • Muebles de cocina bajomesada y columna heladera/horno/escobero en melamina color Grafito. • Mamparas en baños planta alta. • Equipamiento interior y exterior. • Artefactos de cocina y lavadero completo: heladera, lavavajilla y lavarropas. • Artefactos de iluminación colocados. • Parrilla revestida en ladrillos refractarios con herraje básico, mesada contigua con bacha. • Parquizado con césped. Sistema de riego automático. • Piscina 3.00 x8.00 con equipo completo de bomba, filtro e iluminación, solárium piso atérmico. • 2 calefones con agua caliente ilimitada en baños y cocina • Gas de red instalado (no garrafa) • Internet WiFi instalado • Piso radiante • Aire frio calor en todos los ambientes • Casa totalmente equipada, Muebles y Artefactos microondas, tostadora, cafetera, tv La propiedad que figura en esta publicación se encuentra a cargo del profesional matriculado Vázquez Gastón , mp 1575 folio 919 Tomo III, por lo tanto la intermediación y la conclusión de las operaciones serán llevadas EXCLUSIVAMENTE por él. Todas las medidas son aproximadas y se exponen al solo efecto informativo, las cuales no deben ser consideradas como definitivas, ni absolutas.

Detalle del Inmueble

  • Zona: Costa Esmeralda
  • Tipo de Operación: Venta
  • Superficie Total: 902 m2
  • Superficie Cubierta: 270 m2
  • Ambientes: 5
  • Dirección Aprox.: X6W2+HX
  • Valor: U$S 340.000
  • Amueblado
  • Cochera 2
  • Parque
  • Patio
  • Piscina
  • Aire Acondicionado
  • Forma de Pago: Contado
  • Dormitorios: 4
  • Baños: 4
  • Plantas: 2
  • Tipo: Casa
  • Antiguedad: 1 años
  • Ultima Actualizacion: 16/09/2025

Ubicación

Contáctenos

Vázquez Gastón Propiedades
Dirección:
Teléfono: 2254424340
cargando
Enviando

Su consulta ha sido enviada

Contáctenos

LLamar WhatsApp
cargando
Enviando

Su consulta ha sido enviada
Nos comunicaremos en la brevedad


Propiedades Similares

Venta

Casa - Chalet en Pinamar

Código 447436
Del Lazo 355
  • 300 m2
  • 240 m2
  • 6
  • 4
  • 2
  • 1
  • 2

Ubicada en Barrio La herradura, sobre dos lotes unificados con mucha privacidad y vista soñada. PA: 4 habitaciones, 2 baños. Cada cuarto tiene su aire frio calor. El living/cocina/pb tiene aire 6000 frio calor, hogar y tirobalanceado ZF 6000. PB: Living, Cocina completa, toilette de servicio. Aire frio calor, tiro balanceado y hogar. El garage tiene circulacion interna, se conecta a la cocina por puerta. Y adosado al garage esta la dependencia de servicio con su baño. Garage para 4 autos, dos internos y dos media sombra externo. En garage estufa catalitica. La Herradura: Pileta con solárium del Club House Club house Cancha de futbol Canchas de tenis Jaula de golf Canchas de polo (uso exclusivo) Centro Hipico caballerizas Seguridad las 24 hs con garita 2 de salida directa a las ruta 11. A 5 min. con auto de la playa (1600 mts aprox) Superficie cubierta tot 240m2 Superficie semi cub 60m2 Superficie de ambos terrenos 3000 m2 La propiedad que figura en esta publicación se encuentra a cargo del profesional matriculado Vázquez Gastón , mp 1575 folio 919 Tomo III, por lo tanto la intermediación y la conclusión de las operaciones serán llevadas EXCLUSIVAMENTE por él. Todas las medidas son aproximadas y se exponen al solo efecto informativo, las cuales no deben ser consideradas como definitivas, ni absolutas.

Consultar
Venta

Casa - Chalet en Costa Esmeralda

Código 1040
X6W2+HX
  • 902 m2
  • 270 m2
  • 5
  • 4
  • 4
  • 2
  • 1
  • 2

Casa en Senderos III Barrio Costa Esmeralda • 5 ambientes (4 dorm, 1 estar, 1 living comedor) Planta Baja Hall/Estar TV, Toilette de recepción , living Comedor con cocina integrada, amplia galería con parrilla, lavadero, piscina. Dos dormitorios, baño completo. Planta Alta 2 Suites, 1 con terraza balcón. SUPERFICIES Terreno 902.05 m2 Terreno libre 690.94 m2 Construido (100%) Superficie cubierta 213.77 m2 Superficie semicubierta 58.88 m2 Total 272.65 m2 Superficie espejo agua 24.00 m2 Características • Construcción tradicional. Estructura de muros portantes ladrillo portante 18 cms. Fundada sobre bases de hormigón armado. Losa sobre planta baja de Losetas tipo cerbelú. Cubiertas con pendiente: estructura de madera miltilaminada y paneles doble cara de chapa duopanel de Aerolatina con cuerpo de espuma poliuretánica. • Revestimiento exterior siding cementicio 8 mm vertical sobre bastidor pintado con Recuplast frentes. • Calefacción por piso radiante eléctrico marca Arienclima, con termostatos individuales en cada ambiente • Aires acondicionados splits instalados en dormitorios y estar comedor/cocina. Terraza de servicio para ubicación de unidades exteriores. • Cañería para datos en ambas plantas. • Alimentación de agua por tanque cisterna enterrado y bomba presurizadora, tanque de reserva elevado con bomba presurizadora de acuerdo a requerimientos CE. • 2 calefones para agua caliente de consumo en planta baja y planta alta. • Planta de tratamiento residuos cloacales de acuerdo a requerimientos de Costa Esmeralda. • Gas habilitado para alimentación de 2 calefones. • Cerramientos de aluminio Aluar A30 color negro con DVH (doble vidriado hermético), ventanas oscilobatientes y carpinterías corredizas. DVH con laminado en puertas ventana. • Pisos de porcerlanato simil madera en toda la casa, escalera terminada en microcemento • Puertas de madera foliada marca Gromanti. • Griferías FV Puelo monocomando, Espejos y accesorios en baños. • Artefactos sanitarios Piazza Amalfi. Inodoros doble descarga y asiento cierre suave. • Horno y anafe eléctrico marca Candy. Campana isla de acero inoxidable modelo TST Colhue • Mesadas de madera de Euca laqueada transparente en cocina y lavadero. Mesadas microcemento en baños, mesada y banco galería. • Muebles de cocina bajomesada y columna heladera/horno/escobero en melamina color Grafito. • Mamparas en baños planta alta. • Equipamiento interior y exterior. • Artefactos de cocina y lavadero completo: heladera, lavavajilla y lavarropas. • Artefactos de iluminación colocados. • Parrilla revestida en ladrillos refractarios con herraje básico, mesada contigua con bacha. • Parquizado con césped. Sistema de riego automático. • Piscina 3.00 x8.00 con equipo completo de bomba, filtro e iluminación, solárium piso atérmico. • 2 calefones con agua caliente ilimitada en baños y cocina • Gas de red instalado (no garrafa) • Internet WiFi instalado • Piso radiante • Aire frio calor en todos los ambientes • Casa totalmente equipada, Muebles y Artefactos microondas, tostadora, cafetera, tv La propiedad que figura en esta publicación se encuentra a cargo del profesional matriculado Vázquez Gastón , mp 1575 folio 919 Tomo III, por lo tanto la intermediación y la conclusión de las operaciones serán llevadas EXCLUSIVAMENTE por él. Todas las medidas son aproximadas y se exponen al solo efecto informativo, las cuales no deben ser consideradas como definitivas, ni absolutas.

U$S 340.000

Síguenos

Powered By Inmobiliatica
Email Llamar WhatsApp